Glass Navbar
NBORN Properties

Mirdif Hills- Nasayem Avenue

With stunning architecture, inspired finishes and world-class amenities, Mirdif Hills provides a variety of uniqu…

This is your opportunity to own a premium property by Dubai Invesment in Dubai.
Register today to receive exclusive details.

Development Type Residential
Community Mirdif, Dubai
Hand Over Mar 2020
Sales Status Sold Out

Description

With stunning architecture, inspired finishes and world-class amenities, Mirdif Hills provides a variety of unique residences to complement any family lifestyle, set against the backdrop of the spectacular Dubai skyline.

Across three districts: Janayen Avenue, Nasayem Avenue and Al Multaqa Avenue, Mirdif Hills is a premium, mixed-use residential, commercial, hotel and retail development across 4 million square feet. Among intricately landscaped greenery, the development of over 1,500 apartments combines studio, one, two, three or four bedroom flats and duplex units with state-of-the-art amenities and accessible attractions to keep the family happy, busy and inspired.

Nasayem Avenue contains a mixture of residential units ranging from one, two and three bedroom apartments, to three and four bedroom duplexes. Here there are a series of Vertical Villas, an architectural concept that is gaining ever-increasing popularity. The structures of a Vertical Villa are almost integrated into the landscape and have the capacity to bring greenery and planting to every level and not just the ground floor. It is aligned to the sustainable and ecological vision that Dubai Investments Real Estate Company wishes to promote.

In the centre of the Mirdif Hills Master Plan, Nasayem Avenue is a prestigious selection of residential apartments that enjoy an iconic design and comfortable layout within each unit. Apartments range from three and four bedroom duplexes to two and three bedrooms, and are again, designed with a community feel in mind.

Every detail of living in Nasayem Avenue is of the highest standards. Starting with the exterior linear gardens and leading into the the lobby, a welcoming and stylish interior with the highest of specifications. In the apartment ultra-modern interiors and contemporary features extending into the spacious and light-filled bedrooms are a truly impressive sight.

Welcome to Nasayem Avenue, an exquisite residential haven that redefines contemporary living through a blend of innovative architecture and sustainable design. Nestled within its embrace are a range of residential units that cater to your preferences, offering an array of choices from one, two, and three-bedroom apartments to three and four-bedroom duplexes. However, what truly sets Nasayem Avenue apart is its pioneering concept of Vertical Villas, a visionary architectural marvel that's quickly gaining popularity.

The Vertical Villas of Nasayem Avenue aren't just homes; they are living expressions of Dubai Investments Real Estate Company's commitment to sustainability and ecological harmony. These structures artfully merge with the surrounding landscape, intertwining the very essence of greenery and plant life into every level, transcending traditional boundaries. The result is a living space that embraces nature, creates serene environments on each floor, and embraces the beauty of nature in a vertically connected manner.

Nasayem Avenue is more than just a residential complex; it's a testament to the harmonious coexistence of architectural innovation and ecological responsibility. The carefully curated design aligns with Dubai Investments Real Estate Company's vision of creating spaces that not only elevate the quality of living for its residents but also contribute positively to the environment.

Indulge in a lifestyle that merges the modernity of urban living with the tranquility of nature. Nasayem Avenue beckons you to experience a new dimension of living, where innovation meets sustainability, and luxury is harmoniously intertwined with greenery. Welcome to a community that nurtures not only its residents but also the world around it, paving the way for a brighter, more sustainable future.

Mirdiff Hills stands as a captivating and integrated development in the heart of Dubai, offering a unique blend of contemporary living, leisure, and urban convenience. This vibrant community is designed to provide residents with a harmonious environment where modernity meets comfort, complemented by a seamless fusion of residential, commercial, and entertainment spaces.

At the heart of Mirdiff Hills is its commitment to creating a dynamic lifestyle for its residents. The community features a mix of retail outlets, dining establishments, and entertainment venues, ensuring that everything you need is just a stone's throw away. Whether you're seeking a culinary adventure, a shopping spree, or simply a place to unwind, Mirdiff Hills provides a vibrant tapestry of experiences to indulge in.

Mirdiff Hills is more than just a residential development; it's a destination that offers a well-rounded living experience. The community's close proximity to key areas in Dubai ensures easy accessibility to business centers, educational institutions, and leisure destinations. Additionally, the incorporation of sustainable practices and modern infrastructure reflects the commitment to creating an environment that aligns with global standards of quality and comfort.

Total Units - 407

Studio - 2 Units

1Bedroom - 20 Units

2Bedroom - 228 Units

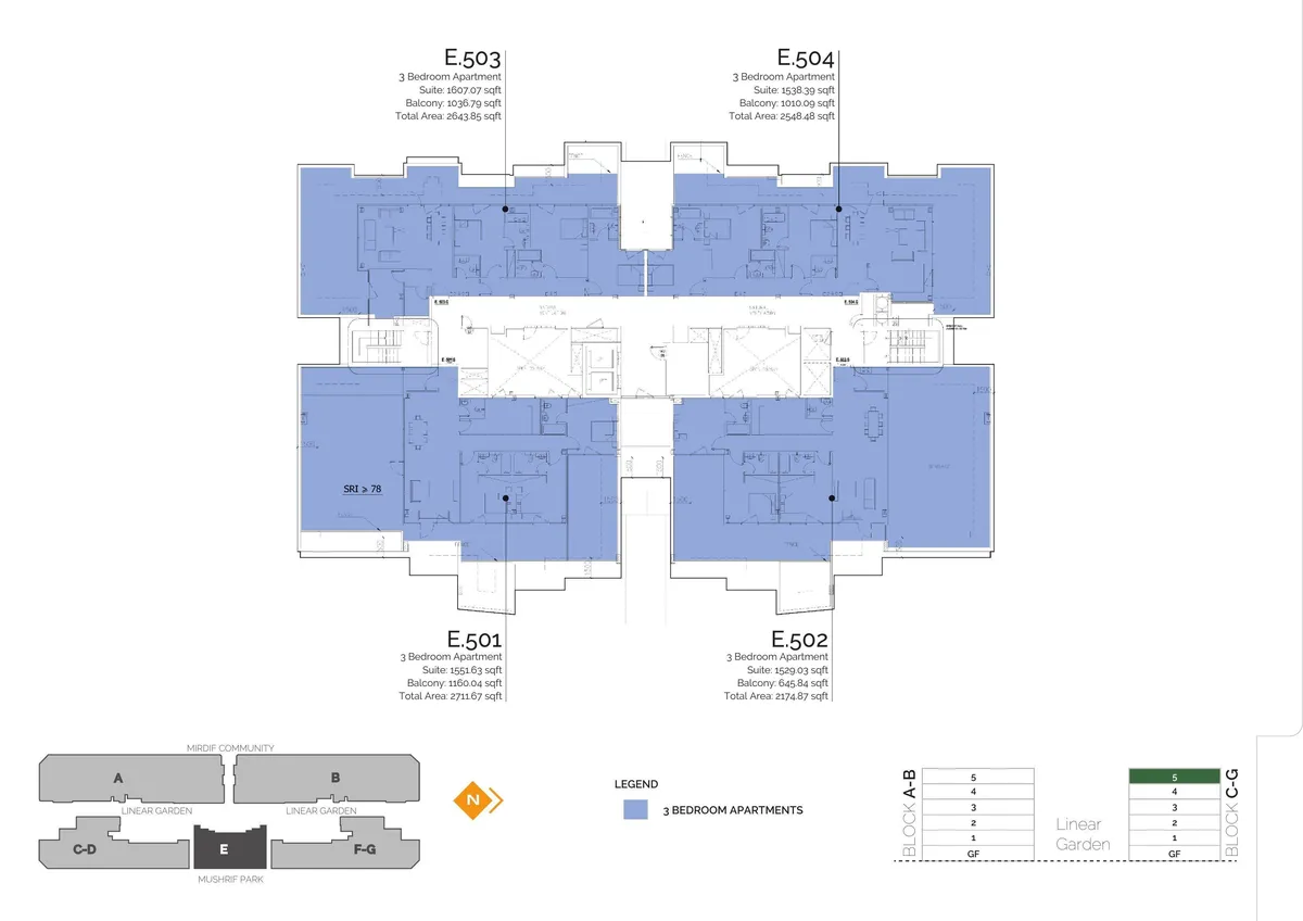
3Bedroom - 112 Units

4Bedroom - 40 Units

Amenities

Unit Details

No unit details available.

Location Map

Contact Agent

Discover Mirdif Hills- Nasayem Avenue, a premium Residential located in Mirdif, Dubai. This property offers a perfect combination of modern design, comfort, and convenience, making it an ideal choice for residents and investors alike.

Featuring bedrooms and bathrooms, this Residential provides spacious living areas, high-quality finishes, and well-planned layouts. Residents can enjoy amenities such as , ensuring a luxurious and practical lifestyle.

NBORN Properties provides verified details, accurate pricing, and up-to-date information on availability. Whether you are looking for a ready-to-move home or an off-plan investment, this property offers excellent potential for both personal use and long-term returns.

The location of Mirdif Hills- Nasayem Avenue in Mirdif offers easy access to schools, shopping centers, transportation, and recreational facilities. With vibrant community life and strong infrastructure, this area is perfect for families, professionals, and investors seeking a secure and modern environment.

Explore all features, images, and floor plans of Mirdif Hills- Nasayem Avenue on NBORN Properties, and contact our experts for personalized guidance and support. Our team is dedicated to helping you make informed decisions and find the best property that suits your lifestyle and investment goals.

Galaxy Real Estate Footer
WhatsApp
<<<<<<< Updated upstream ======= >>>>>>> Stashed changes